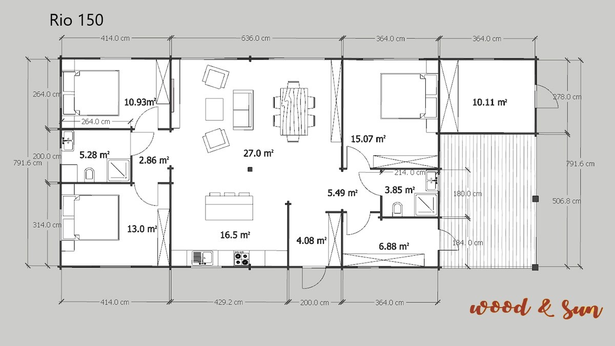
rio150-68mm Ws Rio150 - 8,21 x 18,29 m Εκδοση : My Home
Ξύλινο σπίτι 150 τ.μ για απαιτητικούς . 3 Υπνοδωμάτια 2 μπάνια Parking αυτοκινήτου - βοηθητικούς αποθηκευτικούς χώρους μπαλκονόπορτες
Χαρακτηριστικά :
Πάχος ξυλείας τοίχου : 68 mm
Κεντρικό ύψος: 326cm -Κλίση Στέγης : 7°
Πλαινό ύψος: 270 cm
Πάτωμα: 19 mm - Ταβάνι: 19 mm
Παράθυρα δίφυλλα 5 : 120 x 116,5 cm με ανάκληση και πατζούρια
Παράθυρα μονόφυλλα 2 : 70 x 116,5 & 2: 62,5 x 62,5 cm
Πόρτες 9 : 90 x 197,5 cm
Μπαλκονόπορτες 3 : 140 x 193,5 με εξώφυλλα
Προεξοχή στέγης: 20 cm - Υπόστεγο εισόδου : 8,7 τ.μ
Εμβαδόν στέγης: 157,7 τ.μ
Τιμή Kit με 68 mm πάχος τοίχου : 71600 € /με πόρτες παράθυρα Αλουμινίου : 74000 €
Τιμές με φ.π.α
Τα σχέδια κατασκευής δίνονται με την παραγγελία
Συναρμολόγηση + 14900 € ( Εργασίες και υλικά συναρμολόγησης )
Μεταφορά από την έδρα μας στο σημείο εγκατάστασης : Κόστος ανα περιοχή
Χρόνος κατασκευής :50 με 60 ημέρες
Παράδοση στον αγοραστή : 65 ημέρες περίπου απο την παραγγελία
Εκτιμώμενο κόστος αρχικής εγκατάστασης χωρίς το κόστος βάσης /άδεια προκάτ/μεταφορικά : με τοιχοποιία 68 mm - 577 €/τ.μ
_______________________________________________________________________________________________________________________
Ηλεκτρολογικές και υδραυλικές εγκαταστάσεις : κατόπιν συνεννόησης
_______________________________________________________________________________________________________________________
Επιπλέον υλικά και εργασίες : Μόνωση τοίχων - στέγης - πατώματος
Επιλογή μονωτικών υλικών και επενδύσεων κατόπιν επικοινωνίας .

